INFO EN

VEŘEJNÁ KNIHOVNA V OLOMOUCI

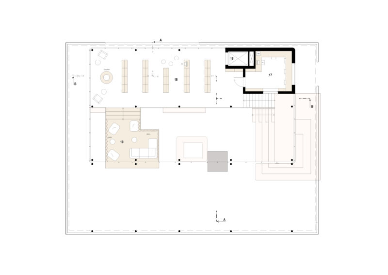
Společně s PMA architects jsme se pustili do veřejné soutěže. Tentokrát o podobu budovy knihovny posazené doprostřed sídliště. Měřítkově jde o malý domek, proto jsme hodně  pracovali s variabilitou prostoru. V přízemí je dětské oddělení a výdejní pult, ze kterého má knihovník přehled o dění v celém prostoru. Do horního, dospěláckého, patra vedou schody, které je možné využít jako auditorium.

 

Jen se zastavit

 

Chtěli jsme potlačit rozdíl mezi „tam venku“ a „tady v knihovně“. Abychom oba světy provázali, protáhli jsme zastřešení knihovny přes přilehlý chodník. Z knihovny se tak stala  přirozená zastávka pro kolemjdoucí.

obrázek v textu
Projekt KNIHOVNA V OLOMOUCI
Zadavatel Statutární město Olomouc
Projekt 2020
Rok realizace ...
Tým Adam Jung, Barbara Jung
Spolupráce Jaromír Vjaclovský (PMA architects s.r.o.)
Sbíráme cookies, abychom lépe nastavili služby webu. Souhlasem nám umožníte získat anonymizovaná statistická data. Více najdete zde. Děkujeme!
Ne
Souhlasím